- ¥Û¡¼¥à
- Ȭ¥ö³Ù¡¦èú²ÊTOP
- ʪ·ï¾ÜºÙ
¾ºÀç¶®¤Î¿¹ÊÌÁñÃÏ
²Á³Ê¡§880Ëü±ß
½êºßÃÏ¡§»³Íü¸©¹ÃÈå»ÔµµÂô»úÂçÌÀ¿À»³
| ¸òÄÌ¥¢¥¯¥»¥¹ | Ãæ±ûËÜÀþ¡ÖÇ£ºê¡×±Ø¤«¤éÌó£±£²¥¥í Ãæ±û¼«Æ°¼ÖÆ»¡ÖÇ£ºê£É£Ã¡×¤«¤éÌó£¹¥¥í |
|---|---|
| ÅÚÃÏÌÌÀÑ | £·£¹£¸¡¥£³£³Ö¡Ê£²£´£±¡¥£´£¹ÄÚ¡Ë |
| »äÆ»ÉéôÌÌÀÑ | ¤Ê¤· |
| ÃÏÌÜ | ÂðÃÏ |
| Á°ÌÌÆ»Ï©Éý°÷ | Ë̦£¶£í¸øÆ» |
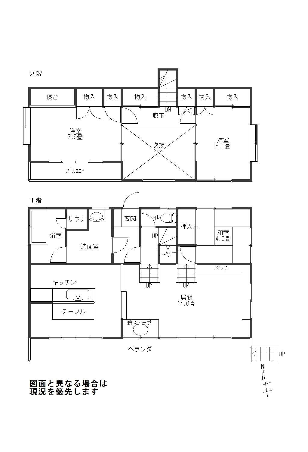
| ·úʪÌÌÀÑ | £±³¬¡§¡¡£¶£¹¡¥£µ£¶Ö £²³¬¡§¡¡£³£¶¡¥£´£³Ö ¡¡·×¡§£±£°£µ¡¥£¹£¹Ö¡Ê£³£²¡¥£°£¶ÄÚ¡Ë |
| ¹½Â¤¡¦³¬¿ô | ÌÚ¤¥¹¥ì¡¼¥ÈÉø£²³¬·ú |
| ´Ö¼è¤ê | £³£Ì£Ä£Ë |
| ÍÑÅÓÃϰè | ÅԻԷײè¶è°è³° |
| ÃÛǯ¿ô | Ê¿À®£²Ç¯£´·î¿·ÃÛ |
| ´ÉÍýÊýË¡ | Éٻλ³¥µ¥¯¥é¥ê¥¾¡¼¥È¹çƱ²ñ¼Ò |
| ¼è°ú·ÁÂÖ | ÇÞ²ð |
| ÀßÈ÷ | ÅìµþÅÅÎÏ »ä±Ä¿åÆ» ¥×¥í¥Ñ¥ó ½¸Ãæ¾ô²½Áå |
ʪ·ï¤Î¹ØÆþ¸å¤Ë¤«¤«¤ë°Ý»ý·ÐÈñ
| ´ÉÍýÈñ | ǯ³Û¡§£¹£¹¡¤£¶£¶£°±ß¡ÊÀǹþ¡Ë |
|---|---|
| ¿åÆ»ÎÁ | ǯ³Û¡§£´£³¡¤£µ£¶£°±ß¡ÊÀǹþ¡Ë¡Ü£±Î©ÊÆ£³£°£¸±ß¡ÊÀǹþ¡Ë |
| ¸ÇÄê»ñ»ºÀÇ | ÎáÏ£·Ç¯ÅÙ¡§£´£°¡¤£¶£°£°±ß |
| ½»Ì±ÀÇ | ²È²°ÉßÀÇ¡§£´¡¤£µ£°£°±ß |
| ¤½¤Î¾¤Î·ÐÈñ | ̾µÁÊѹ¹¡¦¿åÆ»ÍøÍÑ´ð¶â¡§£¶£¶£°¡¤£°£°£°±ß¡ÊÀǹþ¡¢¹ØÆþ»þ°ì³ç¡Ë ÅеÈñÍÑ¡§Ìó£±£²£°¡¤£°£°£°±ß |
ʪ·ïôÅö¼Ô¤«¤é¤Î¥³¥á¥ó¥È
¡Ú¾ºÀç¶®¤Î¿¹ÊÌÁñÃÏ¡Û
¾ºÀç¶®¤Î¿¹ÊÌÁñÃϤϻ³Íü¸©¹ÃÈå»Ô¤Ë¤¢¤ê¡¢Ãæ±û¼«Æ°¼ÖÆ»¡ÖÇ£ºê¡×£É£Ã¤è¤êÌó£¹¥¥í¤È¡¢¼óÅÔ·÷¤«¤é¤â¥¢¥¯¥»¥¹Îɹ¥¤Ç¿Íµ¤¤ÎÊÌÁñÃϤǤ¹¡£
ÊÌÁñÃÏÆâ¤ÏÄø¤è¤¤¹¤µ¡¢¶è²è¤ò¹½¤¨¡¢Á´ÂÎŪ¤Ë¤Ïƻϩ¤â¹¡¹¤Ç¤ª¼Ö¤Î°Üư¤â¤·¤ä¤¹¤¯¡¢Èæ³ÓŪÂ礤¯¹½¤¨¤¿·úʪ¤¬Â¿¤¤ÊÌÁñÃϤȤʤäƤª¤ê¤Þ¤¹¡£
ɸ¹â¤Ï¤ª¤è¤½£±£°£°£°£í¡Á£±£±£°£°£íÄøÅ٤ȡ¢Èò½ë¤Ë¤âŬ¤·¤¿ÊÌÁñÃϤǤ¹¡£
ÆÃÊÌ̾¾¡¤Ë»ØÄê¡¢¹ñÆâÍ¿ô¤Î·Ê¾¡ÃϤǤ¢¤ê¡ÖÆüËܸÞÂç̾¶®¡×¤Î°ì¤Ä¤Ë¿ô¤¨¤é¤ì¤ë¡Ö¾ºÀç¶®¡×¤Þ¤Ç¤ÏÊÌÁñÃϤ«¤é¤ª¼Ö¤Ç£²£°Ê¬ÄøÅ٤ȤʤäƤª¤ê¤Þ¤¹¡£
ÊÌÁñÃϤ«¤éÌó£±£°¥¥í¤Î¤¢¤¿¤ê¡¢Ç£ºê£É£Ã¤ÎÀè¤Ë¤Ï¥í¡¼¥É¥µ¥¤¥É¤ÎŹÊÞ¤¬¸®¤òÏ¢¤Í¡¢À¸³è»¨²ß¡¢¿©ÎÁÅù¡¢ÊÌÁñ¥é¥¤¥Õ¤ËɬÍפʤâ¤Î¤Ï°ìÄ̤ê·¤¦À¸³èÍøÊØÀ¤Ë¤âÍ¥¤ì¤¿ÊÌÁñÃϤǤ¹¡£
¡ÚÅÚÃÏ¡Û
ÆÍ¤Åö¤êƻϩ¤Î¼êÁ°¤Ë°ÌÃÖ¤¹¤ë¤¿¤á¡¢Âè»°¼Ô¤Î¿ÊÆþ¤Ï¤Û¤È¤ó¤É¤Ê¤¯¥×¥é¥¤¥Ð¥·¡¼¤ÎÊݤÁ¤ä¤¹¤¤ÅÚÃϤǤ¹¡£
ÃÏÀÑÌ󣸣°£°Ö¤ÎÅÚÃϤϡ¢Æ»Ï©¤«¤é¤Û¤Ü¥Õ¥é¥Ã¥È¤Ë·úʪ¤ËÆþ¤ë¤³¤È¤¬¤Ç¤¤Þ¤¹¡£Â¿¾¯¤ÎȲºÎ¡¦¤ª¼êÆþ¤ì¤ÏɬÍפ«¤È»×¤¤¤Þ¤¹¤¬¡¢·úʪ¸þ¤«¤Ã¤Æº¸Â¦¤ËÃó¼Ö¥¹¥Ú¡¼¥¹¤ò³ÎÊݤ¹¤ë¤³¤È¤¬¤Ç¤¤½¤¦¤Ç¤¹¡£
ÉßÃϤÏÁ´ÂÎŪ¤Ë¤ÏÆî¦·¹¼ÐÃϤȤʤäƤª¤ê¡¢·¹¼Ð¤ò³è¤«¤·¤¿Ä¯Ë¾¤¬³Ú¤·¤á¤Þ¤¹¡£
¡Ú·úʪ¡Û
Ê¿À®£²Ç¯¿·Ãۤηúʪ¤Ï¡¢¸¼´Ø¤òÆþ¤Ã¤Æ¤«¤é¤ª¤·¤ã¤ì¤ÊÊ·°Ïµ¤¤Î¥¹¥¥Ã¥×³¬Ãʤò¹ß¤ê¤Æ¥ê¥Ó¥ó¥°¤Ë¡¢¤½¤·¤Æ¥ê¥Ó¥ó¥°¤«¤é£²ÃÊÄø¾å¤Ã¤Æ¥À¥¤¥Ë¥ó¥°¥¥Ã¥Á¥ó¡¢£´ÃÊÄø¾å¤¬¤Ã¤ÆÏ¼¼¤Ø¤Î¥¢¥×¥í¡¼¥Á¤È¤Ê¤ê¤Þ¤¹¡££Ì£Ä£Ë¤Ï¿á¤È´¤±¤ÇÈÄÄ¥¤ê¤ÎÊÉÌ̤¬ÊÌÁñ¤é¤·¤¤Îɤ¤Ê·°Ïµ¤¤ò¾ú¤·½Ð¤·¤Æ¤¤¤Þ¤¹¡£¤Þ¤¿¡¢ÊÌÁñ¤Î¿Íµ¤£Î£ï.£±¤ÎÀßÈ÷¡¢¿Å¥¹¥È¡¼¥Ö¤¬¤µ¤é¤Ë¼¼Æâ¤ÎÊ·°Ïµ¤¤òÎɤ¯¤·¤Æ¤ª¤ê¡¢¤â¤Á¤í¤ó¼ÂÍÑŪ¤Ë¤âÅßµ¨¤Ï½ÅÊõ¤·¤Þ¤¹¡Ê±ìÆÍÀ¶ÁÝÍסˡ££±³¬¤Ë£Ì£Ä£Ë¤Èϼ¼¡¢£²³¬¤Ë¿¶Ê¬¤±¤ÎÍμ¼£²¼¼¤È»È¤¤¾¡¼ê¤ÎÎɤ¤£³£Ì£Ä£Ë¥¿¥¤¥×¤Ç¤¹¡£¤´²È²¤Ç¤Î¤´ÍøÍѤϤâ¤Á¤í¤ó¡¢ÃοͤÎÊý¤È¤Î¤´ÍøÍѤä²ñ¼Ò¤ÎÊÝÍܽê¤È¤·¤ÆÅù¡¢Éý¹¤¤¥Ë¡¼¥º¤Ë¤Æ¤ª»È¤¤¤¤¤¿¤À¤±¤Þ¤¹¡£¾®¤µ¤¤¤Ç¤¹¤¬¥µ¥¦¥Ê¤â¤´¤¶¤¤¤Þ¤¹¡£
¥Ç¥Ã¥¤«¤é¤Î¥Ñ¥Î¥é¥Þį˾¤Ï°µ´¬¤Ç¡¢»Íµ¨ÀÞ¡¹¡¢µ¨Àᤴ¤È¤ËÍդο§ºÌ¤äÎÇÀþ¤Îį˾¤¬³Ú¤·¤á¤½¤¦¤Ç¤¹¡£
Î㤨¤Ð¥Ç¥Ã¥¤Ë¥Á¥§¥¢¤òʤ٤ƿ¹ÎÓÍá¤ò¤ª³Ú¤·¤ß¤¤¤¿¤À¤¯¤³¤È¤Ç¡¢Æü¾ï¤Î·öÁû¤«¤éÎ¥¤ì¿´¿È¤È¤â¤Ë¥ê¥Õ¥ì¥Ã¥·¥å¤¹¤ë¤³¤È¤¬¤Ç¤¤½¤¦¤Ç¤¹¡£
¡ÖÆüËܸÞÂç̾¶®¡×¤Î°ì¤Ä¤Ë¿ô¤¨¤é¤ì¤ë¡Ö¾ºÀç¶®¡×¤Î̾¤ò´§¤·¤¿ÊÌÁñÃϤǡ¢¤¼¤ÒÊÌÁñ¥é¥¤¥Õ¤ò¤ª³Ú¤·¤ß¤¯¤À¤µ¤¤¡£
ôÅö:üâ¶¶
¾ºÀç¶®¤Î¿¹ÊÌÁñÃϤϻ³Íü¸©¹ÃÈå»Ô¤Ë¤¢¤ê¡¢Ãæ±û¼«Æ°¼ÖÆ»¡ÖÇ£ºê¡×£É£Ã¤è¤êÌó£¹¥¥í¤È¡¢¼óÅÔ·÷¤«¤é¤â¥¢¥¯¥»¥¹Îɹ¥¤Ç¿Íµ¤¤ÎÊÌÁñÃϤǤ¹¡£
ÊÌÁñÃÏÆâ¤ÏÄø¤è¤¤¹¤µ¡¢¶è²è¤ò¹½¤¨¡¢Á´ÂÎŪ¤Ë¤Ïƻϩ¤â¹¡¹¤Ç¤ª¼Ö¤Î°Üư¤â¤·¤ä¤¹¤¯¡¢Èæ³ÓŪÂ礤¯¹½¤¨¤¿·úʪ¤¬Â¿¤¤ÊÌÁñÃϤȤʤäƤª¤ê¤Þ¤¹¡£
ɸ¹â¤Ï¤ª¤è¤½£±£°£°£°£í¡Á£±£±£°£°£íÄøÅ٤ȡ¢Èò½ë¤Ë¤âŬ¤·¤¿ÊÌÁñÃϤǤ¹¡£
ÆÃÊÌ̾¾¡¤Ë»ØÄê¡¢¹ñÆâÍ¿ô¤Î·Ê¾¡ÃϤǤ¢¤ê¡ÖÆüËܸÞÂç̾¶®¡×¤Î°ì¤Ä¤Ë¿ô¤¨¤é¤ì¤ë¡Ö¾ºÀç¶®¡×¤Þ¤Ç¤ÏÊÌÁñÃϤ«¤é¤ª¼Ö¤Ç£²£°Ê¬ÄøÅ٤ȤʤäƤª¤ê¤Þ¤¹¡£
ÊÌÁñÃϤ«¤éÌó£±£°¥¥í¤Î¤¢¤¿¤ê¡¢Ç£ºê£É£Ã¤ÎÀè¤Ë¤Ï¥í¡¼¥É¥µ¥¤¥É¤ÎŹÊÞ¤¬¸®¤òÏ¢¤Í¡¢À¸³è»¨²ß¡¢¿©ÎÁÅù¡¢ÊÌÁñ¥é¥¤¥Õ¤ËɬÍפʤâ¤Î¤Ï°ìÄ̤ê·¤¦À¸³èÍøÊØÀ¤Ë¤âÍ¥¤ì¤¿ÊÌÁñÃϤǤ¹¡£
¡ÚÅÚÃÏ¡Û
ÆÍ¤Åö¤êƻϩ¤Î¼êÁ°¤Ë°ÌÃÖ¤¹¤ë¤¿¤á¡¢Âè»°¼Ô¤Î¿ÊÆþ¤Ï¤Û¤È¤ó¤É¤Ê¤¯¥×¥é¥¤¥Ð¥·¡¼¤ÎÊݤÁ¤ä¤¹¤¤ÅÚÃϤǤ¹¡£
ÃÏÀÑÌ󣸣°£°Ö¤ÎÅÚÃϤϡ¢Æ»Ï©¤«¤é¤Û¤Ü¥Õ¥é¥Ã¥È¤Ë·úʪ¤ËÆþ¤ë¤³¤È¤¬¤Ç¤¤Þ¤¹¡£Â¿¾¯¤ÎȲºÎ¡¦¤ª¼êÆþ¤ì¤ÏɬÍפ«¤È»×¤¤¤Þ¤¹¤¬¡¢·úʪ¸þ¤«¤Ã¤Æº¸Â¦¤ËÃó¼Ö¥¹¥Ú¡¼¥¹¤ò³ÎÊݤ¹¤ë¤³¤È¤¬¤Ç¤¤½¤¦¤Ç¤¹¡£
ÉßÃϤÏÁ´ÂÎŪ¤Ë¤ÏÆî¦·¹¼ÐÃϤȤʤäƤª¤ê¡¢·¹¼Ð¤ò³è¤«¤·¤¿Ä¯Ë¾¤¬³Ú¤·¤á¤Þ¤¹¡£
¡Ú·úʪ¡Û
Ê¿À®£²Ç¯¿·Ãۤηúʪ¤Ï¡¢¸¼´Ø¤òÆþ¤Ã¤Æ¤«¤é¤ª¤·¤ã¤ì¤ÊÊ·°Ïµ¤¤Î¥¹¥¥Ã¥×³¬Ãʤò¹ß¤ê¤Æ¥ê¥Ó¥ó¥°¤Ë¡¢¤½¤·¤Æ¥ê¥Ó¥ó¥°¤«¤é£²ÃÊÄø¾å¤Ã¤Æ¥À¥¤¥Ë¥ó¥°¥¥Ã¥Á¥ó¡¢£´ÃÊÄø¾å¤¬¤Ã¤ÆÏ¼¼¤Ø¤Î¥¢¥×¥í¡¼¥Á¤È¤Ê¤ê¤Þ¤¹¡££Ì£Ä£Ë¤Ï¿á¤È´¤±¤ÇÈÄÄ¥¤ê¤ÎÊÉÌ̤¬ÊÌÁñ¤é¤·¤¤Îɤ¤Ê·°Ïµ¤¤ò¾ú¤·½Ð¤·¤Æ¤¤¤Þ¤¹¡£¤Þ¤¿¡¢ÊÌÁñ¤Î¿Íµ¤£Î£ï.£±¤ÎÀßÈ÷¡¢¿Å¥¹¥È¡¼¥Ö¤¬¤µ¤é¤Ë¼¼Æâ¤ÎÊ·°Ïµ¤¤òÎɤ¯¤·¤Æ¤ª¤ê¡¢¤â¤Á¤í¤ó¼ÂÍÑŪ¤Ë¤âÅßµ¨¤Ï½ÅÊõ¤·¤Þ¤¹¡Ê±ìÆÍÀ¶ÁÝÍסˡ££±³¬¤Ë£Ì£Ä£Ë¤Èϼ¼¡¢£²³¬¤Ë¿¶Ê¬¤±¤ÎÍμ¼£²¼¼¤È»È¤¤¾¡¼ê¤ÎÎɤ¤£³£Ì£Ä£Ë¥¿¥¤¥×¤Ç¤¹¡£¤´²È²¤Ç¤Î¤´ÍøÍѤϤâ¤Á¤í¤ó¡¢ÃοͤÎÊý¤È¤Î¤´ÍøÍѤä²ñ¼Ò¤ÎÊÝÍܽê¤È¤·¤ÆÅù¡¢Éý¹¤¤¥Ë¡¼¥º¤Ë¤Æ¤ª»È¤¤¤¤¤¿¤À¤±¤Þ¤¹¡£¾®¤µ¤¤¤Ç¤¹¤¬¥µ¥¦¥Ê¤â¤´¤¶¤¤¤Þ¤¹¡£
¥Ç¥Ã¥¤«¤é¤Î¥Ñ¥Î¥é¥Þį˾¤Ï°µ´¬¤Ç¡¢»Íµ¨ÀÞ¡¹¡¢µ¨Àᤴ¤È¤ËÍդο§ºÌ¤äÎÇÀþ¤Îį˾¤¬³Ú¤·¤á¤½¤¦¤Ç¤¹¡£
Î㤨¤Ð¥Ç¥Ã¥¤Ë¥Á¥§¥¢¤òʤ٤ƿ¹ÎÓÍá¤ò¤ª³Ú¤·¤ß¤¤¤¿¤À¤¯¤³¤È¤Ç¡¢Æü¾ï¤Î·öÁû¤«¤éÎ¥¤ì¿´¿È¤È¤â¤Ë¥ê¥Õ¥ì¥Ã¥·¥å¤¹¤ë¤³¤È¤¬¤Ç¤¤½¤¦¤Ç¤¹¡£
¡ÖÆüËܸÞÂç̾¶®¡×¤Î°ì¤Ä¤Ë¿ô¤¨¤é¤ì¤ë¡Ö¾ºÀç¶®¡×¤Î̾¤ò´§¤·¤¿ÊÌÁñÃϤǡ¢¤¼¤ÒÊÌÁñ¥é¥¤¥Õ¤ò¤ª³Ú¤·¤ß¤¯¤À¤µ¤¤¡£
ôÅö:üâ¶¶

























































