- ¥Û¡¼¥à
- Ȭ¥ö³Ù¡¦èú²ÊTOP
- ʪ·ï¾ÜºÙ
ÅìµÞ¥ê¥¾¡¼¥È¥¿¥¦¥óèú²Ê¤¢¤«¤·¤¢Âæ
²Á³Ê¡§780Ëü±ß
½êºßÃÏ¡§Ä¹Ì³ýÌî»ÔËÌ»³»ú¼¯»³
| ÅÚÃÏÌÌÀÑ | £±£¶£·£µÖ¡Ê¼ÚÃÏ¡¦Å¾Âß¼Ú¡Ë |
|---|---|
| ÃÏÌÜ | ¸¶Ìî |
| ·úʪÌÌÀÑ | £·£².£¸£·Ö |
| ¹½Â¤¡¦³¬¿ô | ÌÚ¤¥ë¡¼¥Õ¥£¥ó¥°ÉøÊ¿²°·ú |
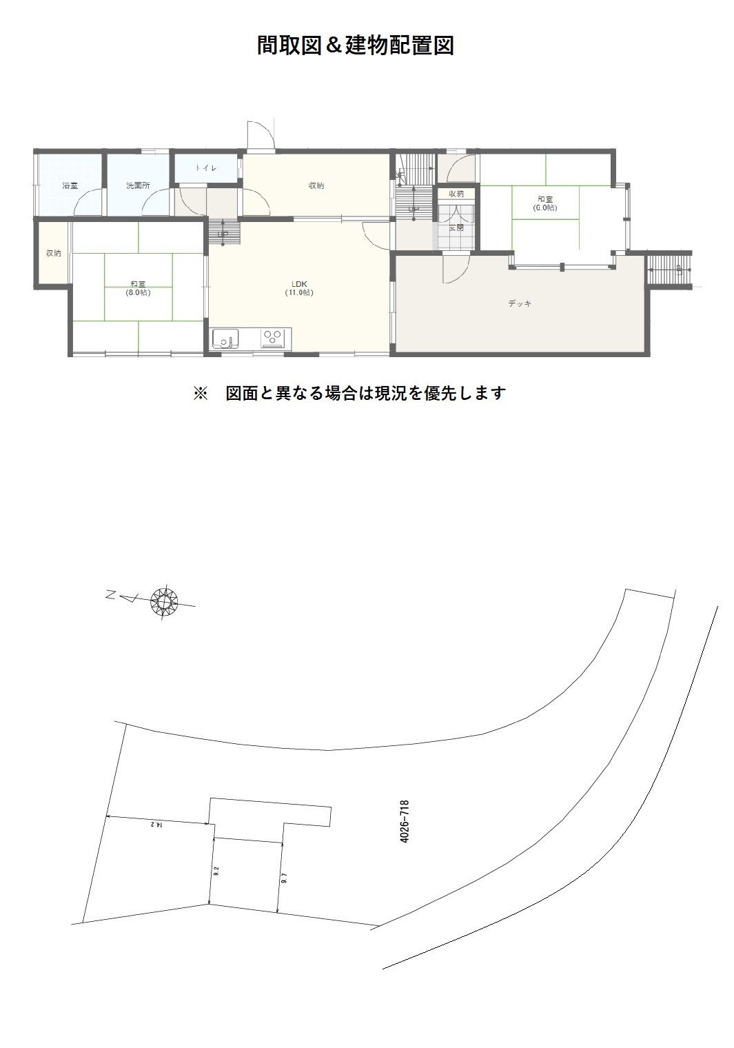
| ´Ö¼è¤ê | £²£Ì£Ä£Ë¡Ü£Ó |
| ÃÛǯ¿ô | ¾¼Ï£µ£·Ç¯£¶·î´°À® |
| ·ú¤Ú¤¤Î¨ | £²£°¡ó |
| ÍÆÀÑΨ | £´£°¡ó |
| Ãó¼Ö¾ì | ͡ʣ±ÂæÊ¬¥¹¥Ú¡¼¥¹Í¡Ë |
| ´ÉÍýÊýË¡ | Á´Éô°ÑÂ÷¡¦½ä²ó |
| ¼è°ú·ÁÂÖ | Ãç²ð |
| ÀßÈ÷ | Åŵ¤¡§ÃæÉôÅÅÎÏ ¿åÆ»¡§»ä±Ä¿åÆ» ¥¬¥¹¡§¸ÄÊÌ¥×¥í¥Ñ¥ó¥¬¥¹ ±ø¿å¡§½¸Ãæ¾ô²½Áå |
| È÷¹Í | ¿áÈ´¤±Å·°æ¤Î¥ê¥Ó¥ó¥°¤Ë¤Ï¤ªÞ¯Íî¤Ê¿Å¥¹¥È¡¼¥Öͤꡣ ¼ÚÃÏ´ü¸ÂÎáÏ£¶Ç¯£±·î£±Æü¤«¤éÎáÏ£²£µÇ¯£±£²·î£³£±Æü¤Þ¤Ç¤Î£²£°Ç¯´Ö¡Ê¹¹¿·²Ä¡Ë |
ʪ·ï¤Î¹ØÆþ¸å¤Ë¤«¤«¤ë°Ý»ý·ÐÈñ
| ´ÉÍýÈñ | £·£¸,£±£°£°±ß¡ÊÀǹþ¡Ë¡¿Ç¯³Û |
|---|---|
| ¿åÆ»ÎÁ | ¾å¿åÆ»´ðËÜÎÁ¡§£³£¹,£¶£°£°±ß¡ÊÀǹþ¡Ë¡¿Ç¯³Û ²¼¿åÆ»ÍøÍÑÎÁ¡§£´£µ,£³£²£°±ß¡ÊÀǹþ¡Ë¡¿Ç¯³Û |
| ¸ÇÄê»ñ»ºÀÇ | £±£·,£¶£°£°±ß¡ÊÎáÏ£·Ç¯¡Ë¡¿Ç¯³Û |
| ¼ÚÃÏÎÁ | £±£¶£´,£²£³£°±ß¡ÊÈó²ÝÀǡˡ¿Ç¯³Û |
| ¤½¤Î¾¤Î·ÐÈñ | ¥±¡¼¥Ö¥ë¥Æ¥ì¥Ó¡§£³£°,£³£¶£°±ß¡ÊÀǹþ¡Ë¡¿Ç¯³Û ¹ØÆþ»þ°ì³çʧ žÂß¼Ú̾µÁÊѹ¹ÎÁ¡§£±£±Ëü±ß¡ÊÀǹþ¡Ë ͤê¶â·ÀÌó»þÀº»»¡§¡¡¡¡Ëü±ß¡ÊÉÔ²ÝÀÇ¡Ë ¥±¡¼¥Ö¥ë¥Æ¥ì¥Ó̾µÁÊѹ¹ÎÁ¡§£±,£±£°£°±ß¡ÊÀǹþ¡Ë Ãç²ð¼ê¿ôÎÁ¡§£³£³Ëü±ß¡ÊÀǹþ¡Ë ¼ÚÃÏ´ü¸Â¹¹¿·»þ»ö̳¼ê¿ôÎÁ¡§£±£±Ëü±ß¡ÊÀǹþ¡Ë |
ʪ·ïôÅö¼Ô¤«¤é¤Î¥³¥á¥ó¥È
ÅìµÞ¥ê¥¾¡¼¥È¥¿¥¦¥óèú²Ê¤¢¤«¤·¤¢Âæ¤ÎÂçÄ̤ê¤ËÌ̤·¤¿¸Í·úÊÌÁñ¤Î¤´¾Ò²ð¤Ç¤¹¡£
ÅìµÞ¥ê¥¾¡¼¥È¥¿¥¦¥óèú²Ê¤Ïèú²Ê¹â¸¶¤Î¤Û¤ÜÃæ±û¤ËŸ³«¤¹¤ë£¶£¶£°£è£á¡ÊÅìµþ¥É¡¼¥àÌó£±£´£°¸Äʬ¡Ë¤ÎÊ£¹ç¥ê¥¾¡¼¥È¤Ç¤¹¡£»ÜÀ߯â¤Ë¤Ï¥Û¥Æ¥ë¡¢¥´¥ë¥Õ¾ì¡¢¥¹¥¡¼¾ì¡¢¥¢¥É¥Ù¥ó¥Á¥ã¡¼»ÜÀß¡¢¥Æ¥Ë¥¹¡¢¥×¡¼¥ë¡¢²¹ÀôÅù¡¢³Æ¼ï¥ì¥¸¥ã¡¼¤ò³Ú¤·¤à¤³¤È¤¬¤Ç¤¤Þ¤¹¡£
¡ÚÉßÃÏ¡Û
ÉßÃϤÏÅФη¹¼ÐÃϤˤʤê¤Þ¤¹¡£·¹¼ÐÃϤǤ¹¤¬¡¢·úʪ¤Þ¤Ç¤ÏÈæ³ÓŪ¤Ë´Ë¤ä¤«¤Í·¹¼Ð¤Ë¤Ê¤Ã¤Æ¤ª¤ê¤Þ¤¹¡£·¹¼Ð¤òÅлԤޤ¹¤¬¡¢¤½¤Îʬį˾¤¬ÁÇÀ²¤é¤·¤¤¤Ç¤¹¡£
Ãó¼Ö¥¹¥Ú¡¼¥¹¤â¤·¤Ã¤«¤ê³ÎÊݤµ¤ì¤Æ¤ª¤ê¤Þ¤¹¡£
¡Ú·úʪ¡Û
ËÜʪ·ï¤Ï·¹¼Ð¤òÀ¸¤«¤·¤¿Â¤¤ê¤Î·úʪ¤Ç¡¢£¶¾ö´Ö¤È¿å²ó¤ê¤¬£±Ãʹ⤯¤Ê¤Ã¤Æ¤ª¤ê¤Þ¤¹¡£´Ö¼è¤Ï£¸¾ö¤È£¶¾ö¤Îϼ¼Æó´Ö¤«¤é¤Ê¤ë£²£Ì£Ä£Ë¤Ç¤¹¡£
¿áÈ´¤±Å·°æ¤Ç²òÊü´¶¤¬¤¢¤ë¥ê¥Ó¥ó¥°¤Ë¤Ï¿Å¥¹¥È¡¼¥Ö¤È¥·¡¼¥ê¥ó¥°¥Õ¥¡¥ó¤¬ÀßÃÖ¤µ¤ì¤Æ¤ª¤ê¤Þ¤¹¡£
¾¼Ï£µ£·Ç¯¤Î·úʪ¤Ë¤Ê¤ê¤Þ¤¹¤Î¤Ç¡¢·Ðǯ¤Ë¤è¤ë¿¾¯¤ÎÔÌ»±øÂ»¤Ï¤¢¤ê¤Þ¤¹¤¬¡¢¤È¤Æ¤â¤·¤Ã¤«¤ê¤È¤·¤Æ¤ª¤ê¡¢¤³¤ì¤«¤éÀè¤â½½Ê¬¤ª»È¤¤Äº¤¯»ö¤¬²Äǽ¤Ç¤¹¡£
¸¼´ØÁ°¤ËÂ礤ʥ¦¥Ã¥É¥Ç¥Ã¥¤¬¤¢¤ë¤Î¤â¤¦¤ì¤·¤¤¤Ç¤¹¤Í¡£
À§È󡢤´¸¡Æ¤Äº¤±¤ë¤È¹¬¤¤¤Ç¤¹¡£
ôÅö¡§¹¾Êý
ÅìµÞ¥ê¥¾¡¼¥È¥¿¥¦¥óèú²Ê¤Ïèú²Ê¹â¸¶¤Î¤Û¤ÜÃæ±û¤ËŸ³«¤¹¤ë£¶£¶£°£è£á¡ÊÅìµþ¥É¡¼¥àÌó£±£´£°¸Äʬ¡Ë¤ÎÊ£¹ç¥ê¥¾¡¼¥È¤Ç¤¹¡£»ÜÀ߯â¤Ë¤Ï¥Û¥Æ¥ë¡¢¥´¥ë¥Õ¾ì¡¢¥¹¥¡¼¾ì¡¢¥¢¥É¥Ù¥ó¥Á¥ã¡¼»ÜÀß¡¢¥Æ¥Ë¥¹¡¢¥×¡¼¥ë¡¢²¹ÀôÅù¡¢³Æ¼ï¥ì¥¸¥ã¡¼¤ò³Ú¤·¤à¤³¤È¤¬¤Ç¤¤Þ¤¹¡£
¡ÚÉßÃÏ¡Û
ÉßÃϤÏÅФη¹¼ÐÃϤˤʤê¤Þ¤¹¡£·¹¼ÐÃϤǤ¹¤¬¡¢·úʪ¤Þ¤Ç¤ÏÈæ³ÓŪ¤Ë´Ë¤ä¤«¤Í·¹¼Ð¤Ë¤Ê¤Ã¤Æ¤ª¤ê¤Þ¤¹¡£·¹¼Ð¤òÅлԤޤ¹¤¬¡¢¤½¤Îʬį˾¤¬ÁÇÀ²¤é¤·¤¤¤Ç¤¹¡£
Ãó¼Ö¥¹¥Ú¡¼¥¹¤â¤·¤Ã¤«¤ê³ÎÊݤµ¤ì¤Æ¤ª¤ê¤Þ¤¹¡£
¡Ú·úʪ¡Û
ËÜʪ·ï¤Ï·¹¼Ð¤òÀ¸¤«¤·¤¿Â¤¤ê¤Î·úʪ¤Ç¡¢£¶¾ö´Ö¤È¿å²ó¤ê¤¬£±Ãʹ⤯¤Ê¤Ã¤Æ¤ª¤ê¤Þ¤¹¡£´Ö¼è¤Ï£¸¾ö¤È£¶¾ö¤Îϼ¼Æó´Ö¤«¤é¤Ê¤ë£²£Ì£Ä£Ë¤Ç¤¹¡£
¿áÈ´¤±Å·°æ¤Ç²òÊü´¶¤¬¤¢¤ë¥ê¥Ó¥ó¥°¤Ë¤Ï¿Å¥¹¥È¡¼¥Ö¤È¥·¡¼¥ê¥ó¥°¥Õ¥¡¥ó¤¬ÀßÃÖ¤µ¤ì¤Æ¤ª¤ê¤Þ¤¹¡£
¾¼Ï£µ£·Ç¯¤Î·úʪ¤Ë¤Ê¤ê¤Þ¤¹¤Î¤Ç¡¢·Ðǯ¤Ë¤è¤ë¿¾¯¤ÎÔÌ»±øÂ»¤Ï¤¢¤ê¤Þ¤¹¤¬¡¢¤È¤Æ¤â¤·¤Ã¤«¤ê¤È¤·¤Æ¤ª¤ê¡¢¤³¤ì¤«¤éÀè¤â½½Ê¬¤ª»È¤¤Äº¤¯»ö¤¬²Äǽ¤Ç¤¹¡£
¸¼´ØÁ°¤ËÂ礤ʥ¦¥Ã¥É¥Ç¥Ã¥¤¬¤¢¤ë¤Î¤â¤¦¤ì¤·¤¤¤Ç¤¹¤Í¡£
À§È󡢤´¸¡Æ¤Äº¤±¤ë¤È¹¬¤¤¤Ç¤¹¡£
ôÅö¡§¹¾Êý


















































