- ¥Û¡¼¥à
- °ËƦ¡¦È¢º¬¡¦Ç®³¤ TOP
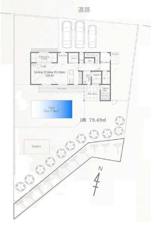
- ʪ·ï¾ÜºÙ
ȬȨÌî¤Î¥×¡¼¥ë¥Ï¥¦¥¹
²Á³Ê¡§7990Ëü±ß
½êºßÃÏ¡§ÀŲ¬¸©°ËÅì»ÔȬȨÌî
| ¸òÄÌ¥¢¥¯¥»¥¹ | °ËƦµÞ¹ÔÀþ °ËƦ¹â¸¶±Ø¤è¤êÌó2km¡¡¼Ö¤ÇÌó4ʬ ÅÌÊâ33ʬ °ËƦ¹â¸¶±Ø¤è¤ê¥Ð¥¹¤Ç5ʬ¤Î¥Ð¥¹Ää¡¢¹â¸¶Ãæ±û¤«¤éÅÌÊâ10ʬ °ËƦ¥¹¥«¥¤¥é¥¤¥ó¡¡Å·¾ë¹â¸¶IC¤è¤ê¡¡Ìó9km¡¡¼Ö¤Ç14ʬ |
|---|---|
| ÅÚÃÏÌÌÀÑ | 449Ö¡¡135.82ÄÚ |
| ÃÏÌÜ | »³ÎÓ |
| Á°ÌÌÆ»Ï©Éý°÷ | Ë̦¤ËÊÞÁõ»äÆ»¡¢Éý°÷5.5m¤ËÌó21m¡¡°ÌÃÖ»ØÄêÆ»Ï©¤ËÀÜÆ» |
| ·úʪÌÌÀÑ | 129.17Ö¡¡39ÄÚ |
| ¥Ð¥ë¥³¥Ë¡¼ÌÌÀÑ | 1³¬¡¡Æî¦¤Ë6.2Ä¡ 2³¬¡¢Æî¦¤Ë7.5Ä¡¤ÈË̦¤Ë5Ä¡ |
| ¹½Â¤¡¦³¬¿ô | ÌÚ¤¹ç¶â¥á¥Ã¥¹ÝÈĤ֤£²³¬·ú |
| ´Ö¼è¤ê | 2LDK |
| ÍÑÅÓÃϰè | ÈóÀþ°ú¤¶è°è ̵»ØÄê |
| ÃÛǯ¿ô | ÎáÏÂ6ǯ9·î·úÃÛ¡¡ÃÛ1ǯ |
| ·ú¤Ú¤¤Î¨ | 60% |
| ÍÆÀÑΨ | 200% |
| Ãó¼Ö¾ì | 3Âæ |
| ¼è°ú·ÁÂÖ | Ãç²ð |
| ÀßÈ÷ | ¾å¿åÆ»¡¢¸ÄÊ̾ô²½Áå¡¢¥×¥í¥Ñ¥ó¥¬¥¹ |
| È÷¹Í | ¢£²¹Àô/·ÀÌó´ü´Ö2026ǯ9·î30Æü¤Þ¤Ç¡Ê¹¹¿·ÎÁ¡§385,000±ß/5ǯ´Ö¡Ë¡¢Ì¾µÁÊѹ¹ÎÁ¡§220,000±ß¡ÊÀǹþ¡Ë ¢£°ËƦ¹â¸¶¿ÆÏ²ñ/ǯ²ñÈñ͡ʸĿͽêͼԡ§19,200±ß/ǯ¡¢Ë¡¿Í½êͼԡ§78,600±ß/ǯ¡Ë ¢£¿åÆ»/¡Ö»ä±Ä¿åÆ»¡×¤Ç¤¢¤êÆÈ¼«¤Îµ¬Ä꤬Àߤ±¤é¤ì¤Æ¤ª¤ê¤Þ¤¹¤Î¤Ç¡¢½å¼é¤·¤Æ²¼¤µ¤¤¡£ |
ʪ·ïôÅö¼Ô¤«¤é¤Î¥³¥á¥ó¥È
²¹Àô¤Ë¥µ¥¦¥Ê¤È¥×¡¼¥ë¡¢¤¹¤Ù¤Æ¤ò¤´¼«Âð¤Ç¤Ç³Ú¤·¤á¤ë¡¢°ËƦ¥ê¥¾¡¼¥È¤Î·úʪ¤Ç¤¹¡£
°ËƦȾÅç¤ÎÄ«Æü¤Î¾å¤ëÅ쳤´ß¦¤Îʪ·ï¤Ç¤¹¡£
Âç¼¼»³¤Îϼ¤«¤éÆî¤Ë1¥¥í¤Û¤É¤Î¤È¤³¤í¤Ë¤Ê¤ê¤Þ¤¹¡£
ÉßÃÏ¤ÎÆî¦¤Ë¤Ï¥×¡¼¥ë¤¬¤¢¤ê¤Þ¤¹¡£
¥×¡Ý¥ë¦¤Î1³¬¤Ë¤Ï¡¢¥µ¥¦¥Ê¤âºî¤é¤ì¤Æ¤¤¤Þ¤¹¡£
Æó³¬¤«¤éÍμ¼¤ä¥Ð¥ë¥³¥Ë¡¼¤«¤é¤Ï¡¢Æî¦¤ËÂÀÊ¿ÍΤ¬Ë¾¤á¤Þ¤¹¡£
¥¥Ã¥Á¥óÏÆ¤Ë¤Ï1ÄڤΥѥó¥È¥ê¡¼¤¬¤¢¤ê¡¢¿©ÉʤäÄ´Íý´ï¶ñ¤äÆüÍÑÉʤΥ¹¥È¥Ã¥¯¤òÊݴɤǤ¤Þ¤¹¡£
¥Ñ¥ó¥È¥ê¡¼¤ÎÏÆ¤Ë¤Ï¡¢¥ï¡¼¥¯¥¹¥Ú¡¼¥¹¤¬1Ä¡¤¢¤ê¤Þ¤¹¡£
¸¼´ØÆþ¤ë¤È¤¹¤°¤Ë¥·¥å¡¼¥º¥¤¥ó¥¯¥í¡¼¥¼¥Ã¥È¤¬Ìó1ÄÚ¤¢¤ê¡¢¸¼´Ø¼þ¤ê¤¬¥¹¥Ã¥¥ê¤Ç¤¤Þ¤¹¡£
¼þÊդˤÏ
¥»¥Ö¥ó¥¤¥ì¥Ö¥ó Ìó1.7Ò
¥«¥¤¥ó¥º Ìó1.9Ò
¥³¥³¥«¥é¥Õ¥¡¥¤¥ó Ìó2.1Ò
ÂÐÅçÃæ³Ø¹» Ìó2.1Ò
ÅìµÞ¥¹¥È¥¢ Ìó2.2Ò
ȬȨÌî¾®³Ø¹» Ìó2.5Ò
ɸ¹â¤Ï Ìó205m
¼ò°æ
°ËƦȾÅç¤ÎÄ«Æü¤Î¾å¤ëÅ쳤´ß¦¤Îʪ·ï¤Ç¤¹¡£
Âç¼¼»³¤Îϼ¤«¤éÆî¤Ë1¥¥í¤Û¤É¤Î¤È¤³¤í¤Ë¤Ê¤ê¤Þ¤¹¡£
ÉßÃÏ¤ÎÆî¦¤Ë¤Ï¥×¡¼¥ë¤¬¤¢¤ê¤Þ¤¹¡£
¥×¡Ý¥ë¦¤Î1³¬¤Ë¤Ï¡¢¥µ¥¦¥Ê¤âºî¤é¤ì¤Æ¤¤¤Þ¤¹¡£
Æó³¬¤«¤éÍμ¼¤ä¥Ð¥ë¥³¥Ë¡¼¤«¤é¤Ï¡¢Æî¦¤ËÂÀÊ¿ÍΤ¬Ë¾¤á¤Þ¤¹¡£
¥¥Ã¥Á¥óÏÆ¤Ë¤Ï1ÄڤΥѥó¥È¥ê¡¼¤¬¤¢¤ê¡¢¿©ÉʤäÄ´Íý´ï¶ñ¤äÆüÍÑÉʤΥ¹¥È¥Ã¥¯¤òÊݴɤǤ¤Þ¤¹¡£
¥Ñ¥ó¥È¥ê¡¼¤ÎÏÆ¤Ë¤Ï¡¢¥ï¡¼¥¯¥¹¥Ú¡¼¥¹¤¬1Ä¡¤¢¤ê¤Þ¤¹¡£
¸¼´ØÆþ¤ë¤È¤¹¤°¤Ë¥·¥å¡¼¥º¥¤¥ó¥¯¥í¡¼¥¼¥Ã¥È¤¬Ìó1ÄÚ¤¢¤ê¡¢¸¼´Ø¼þ¤ê¤¬¥¹¥Ã¥¥ê¤Ç¤¤Þ¤¹¡£
¼þÊդˤÏ
¥»¥Ö¥ó¥¤¥ì¥Ö¥ó Ìó1.7Ò
¥«¥¤¥ó¥º Ìó1.9Ò
¥³¥³¥«¥é¥Õ¥¡¥¤¥ó Ìó2.1Ò
ÂÐÅçÃæ³Ø¹» Ìó2.1Ò
ÅìµÞ¥¹¥È¥¢ Ìó2.2Ò
ȬȨÌî¾®³Ø¹» Ìó2.5Ò
ɸ¹â¤Ï Ìó205m
¼ò°æ



















































